aw
Menu

Mehrfamilienhaus im Sahlkamp

Home / Portfolio / Projekt 21

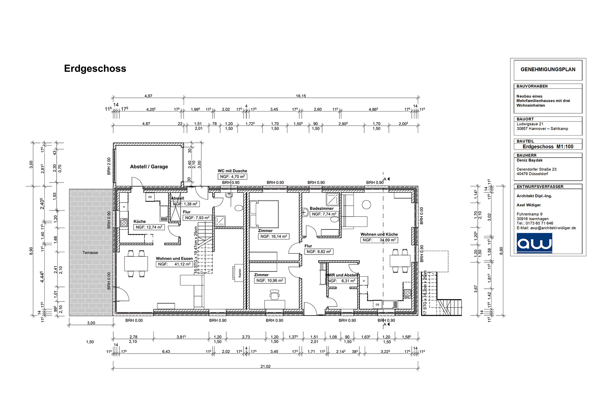
Neubau eines Mehrfamilienhauses mit drei Wohneinheiten in Hannover-Sahlkamp

Im Norden der Stadt Hannover, im Stadtteil Sahlkamp, hatten sich Bauherren ein Grundstück gekauft mit der Zielsetzung, für sich Wohnraum zu schaffen und darüber hinaus zwei Wohneinheiten für Mietzwecke. Wir machten uns sogleich im Sommer 2023 an die Arbeit. Ein Bebauungsplan existierte für das Areal nicht, so dass für unser Büro ein entwurflich anspruchsvolles Einfügen gemäß § 34 BauBG nötig wurde. Die Baugenehmigung für das Mehrfamilienhaus mit drei Wohneinheiten wurde schließlich mit Beginn 2024 erteilt – die Fertigstellung des Baus ist im Herbst 2024.

Projekt: MFH mit 3 Wohnungen

Leistung: Entwurf + Genehmigungsplanung

Eckdaten: Neubau eines Mehrfamilienhauses mit 2 Geschossen, ca. 330 qm Wohnfläche

Ort: Ludwigsaue, Hannover-Sahlkamp

Projektjahr: Fertigstellung 2024